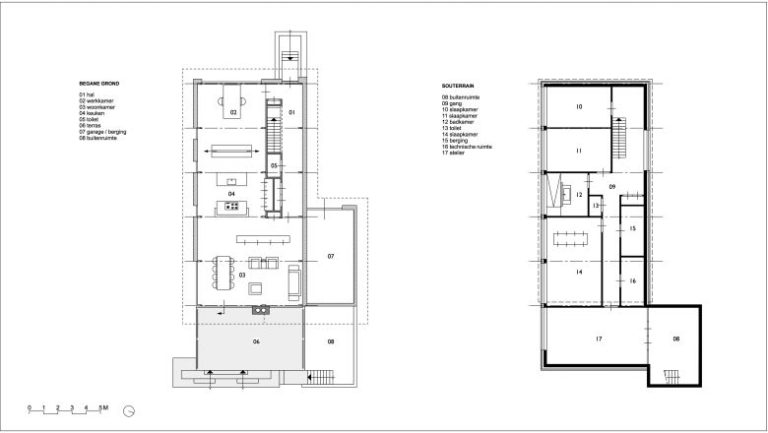
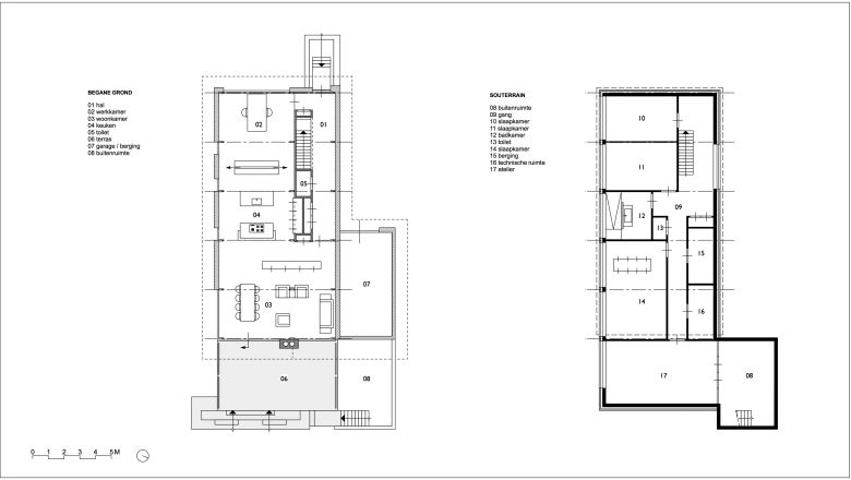
Door een doordacht, effectief traject worden risico's beheerst. Met dit traject bieden wij,
in elke fase, grip op de gevolgen van bepaalde keuzes en voornemens. Het traject begint echter altijd bij u: er ontstaat een wens, kans of u krijgt een idee...
Diensten
Werkwijze en Dienstverlening
1. Oriëntatie en vooronderzoek
Samen met u stellen we een programma van eisen en wensen op en onderzoeken we de (on)mogelijkheden voor het ontwerp binnen bestemmingsplannen, wetten en regelgeving. Natuurlijk ontbreekt ook een analyse van de financiële haalbaarheid niet.
2. Ontwerpen
Op basis van de oriëntatie beginnen we met het ontwerpen. Het is onze uitdaging iets moois te ontwerpen dat perfect aansluit bij uw wensen en mogelijkheden. Hierbij hebben we veel contact met u en leggen we de vorderingen van het ontwerp regelmatig aan u en (waar nodig) de overheden voor.
3. Voorbereiding bouwen
De (technische) plannen voor het bouwen worden uitgewerkt en aan overheden voorgelegd. Stap voor stap zetten we samen alles op zijn plaats. Wij zijn een full service bureau: bouwaanvragen, (milieu)- vergunningen en/of aanbestedingen; wij verzorgen het allemaal.
4. Uitvoering bouw
De plannen krijgen nu zijn echte vorm. Als architect leiden we (met toezicht of directievoering) de bouw in goede banen. We bewaken de budgetten en houden contact met de uitvoerende partijen. Zo komt u tijdens het bouwen niet voor onaangename verrassingen te staan.
5. Einde bouw: oplevering
De bouw van uw nieuwe of verbouwde woning, kantoor, bedrijfspand, school, kerk of ander gebouw is klaar: de oplevering. Na afhandeling van de laatste officiële zaken is de ruimte klaar voor gebruik.
A. Ontwerpfase
- Probleemanalyse en opstellen programma van eisen.
- Opname bestaande toestand en inventarisatie stedenbouwkundige randvoorwaarden.
- Vaststellen bouwtechnische en/of gebruikstechnische kwaliteit van de bestaande bebouwing.
- Het maken van de nodige voorstellen die tot een definitief ontwerp leiden.
- Het vervaardigen van het definitief ontwerp.
- Coördinatie adviseurs constructie, installaties en energieprestatienormering.
- Het maken van een voorlopig ontwerp.
- Het verzorgen van de goedkeuring door de gemeente van het definitieve ontwerp vwb. het bestemmingsplan en de welstandscommissie. (tekeningen met gevels, platte gronden, situatie, principedetails en kadastrale situatietekening, beeldmateriaal).
- Raming procedure- en bouwtijd.
- Opstellen van een globale kostenraming en beoordeling budget.
- Vervaardigen 3D-visualisaties.
B. Bestekfase
- Het vervaardigen van de bestektekeningen die nodig zijn voor de aanvraag om bouw-vergunning. (tekeningen met situatie, gevels, platte gronden, fundering, riolering, vloeren-plannen, dakplan, doorsneden en de uitgewerkte detaillering).
- Coördinatie adviseurs constructie, installaties en energieprestatienormering.
- Het voeren van overleg met gemeentelijke instanties en overige adviseurs t.b.v. de aanvraag bouwvergunning en overige vergunningen.
- Het klaarmaken van de benodigde bescheiden voor het verkrijgen van een bouwvergunning.
- Toetsing aan het bouwbesluit.
- Rapportage van het bouwbesluit van o.a. + Verblijfs- en gebruiksoppervlak. + Daglichttoetreding. + Ventilatie. + Konstruktie. (statische berekeningen) + EPC-berekening
- Het namens de opdrachtgever aanvragen van de bouwvergunning bij de Gemeente en verzorgen van de ontvankelijkheid van de aanvrage.
- Het vervaardigen van aanvullende tekeningen tbv. de aanbesteding van het werk.
- Het schrijven van een werkomschrijving of bestek tbv. de aanbesteding van het werk.
- Het verzorgen van de aanbesteding, advisering inzake de prijsaanbieding en gunning van het werk tot aan de ondertekening van de aanneemovereenkomst.
C. Uitvoeringsfase
- Het maken van de benodigde werktekeningen welke voor een goede bouw noodzakelijk zijn. (tekeningen met doorsnedes en plattegronden op grotere schaal, aanzichten binnen- en buiten, kozijntekeningen met kozijndetails, aansluitdetails op muren, vloeren, daken e.d).
- Controle en rapportage tijdens de uitvoering van het bouwwerk (projectcoördinatie) t/m de uiteindelijke oplevering van het werk.
- Bouwvergaderingen houden en verslagen maken tijdens de uitvoering.
D. Inrichtingsfase
- Algemeen advies inzake de aanpassing en inpassing van afwerkingen, inrichtingelementen, armaturen, toestellen e.d.
- Keuzes mbt. de materiaaltoepassing, de maatvoering en de detaillering hiervan binnen het interieur.
- Het opstellen van een raming van deze inrichtingskosten.
- De verwerking hiervan op tekening zoals; + globaal keukenontwerp. + legplan vloerafwerking. + verlichtingsplan. + type en opstelling verwarmingselementen e.d. + kast- en inbouwelementen.
- Controle en rapportage tijdens de uitvoering van inrichtingsfase. (projectcoördinatie)








